
Стабильная теплопроизводительность
Теплопроизводительность полупромышленных систем Mitsubishi Electric серии ZUBADAN сохраняет номинальное значение вплоть до температуры наружного воздуха –15°С. При дальнейшем понижении температуры теплопроизводительность начинает уменьшаться.
(Завод-изготовитель гарантирует работоспособность систем серии «PUHZ-SHW R2.UK» до температуры –28°С.)

Быстрый выход на рабочий режим
Алгоритм управления прибором оптимизирован с целью достижения максимальной теплопроизводительности, например, при пуске системы в холодном помещении или при низкой температуре наружного воздуха.

Управление режимом оттаивания
Алгоритм управления прибором предусматривает эффективный режим оттаивания наружного теплообменника. Процесс оттаивания происходит быстро и незаметно для пользователя. Благодаря этому теплообменник при любой погоде сухой и чистый, что гарантирует наивысшую энергоэффективность отопления.

Характеристики
|
Модель |
Наружный блок |
PUHZ-SHW80VHAR2 |
PUHZ-SHW112VHAR2 |
PUHZ-SHW112YHAR2 |
PUHZ-SHW140YHAR2 |
PUHZ-SHW230YKA |
|
|
Кассетный внутренний блок (пример) |
PLA-ZRP71BA |
PLA-ZRP100BA |
PLA-ZRP100BA |
PLA-ZRP125BA |
только для систем «воздух-вода» 2 |
||
|
Режим нагрева |
теплопроизводительность |
кВт |
8,0 (4,5-10,2) |
11,2(4,5-14,0) |
11,2 (4,5-14,0) |
14,0 (5,0-16,0) |
23,0 |
|
потребляемая мощность |
кВт |
2,047 |
2,667 |
2,667 |
3,879 |
6,31 |
|
|
сезонный коэффициент энергоэффективности SCOP |
3,7 (А) |
4,0 (A+) |
4,0 (A+) |
3,5 (A) |
СОР: 3,65 |
||
|
уровень звукового давления |
ДБ(А) |
51 |
52 |
52 |
52 |
59 |
|
|
встроенный электрический нагреватель |
- |
- |
- |
- |
- |
||
|
Режим охлаждения |
холодопроизводительность |
кВт |
7,1 (4,9-8,1) |
10,0(4,9-11,4) |
10,0 (4,9-11,4) |
12,5 (5,5-14,0) |
20,0 |
|
потребляемая мощность |
кВт |
1,864 |
2,786 |
2,786 |
4,449 |
9,01 |
|
|
сезонный коэффициент энергоэффективности SEER |
5,1 (А) |
5,5 (A) |
5,5 (A) |
5,1 (A) |
EER: 2,22 |
||
|
уровень звукового давления |
ДБ(А) |
50 |
51 |
51 |
51 |
58 |
|
|
уровень звуковой мощности |
ДБ(А) |
68 |
69 |
69 |
69 |
|
|
|
Электропитание |
напряжение питания (В, ф, Гц) |
В |
220-240 В, 1 фаза, 50 Гц |
380-415 В, 3 фазы, 50 Гц |
|||
|
автоматический выключатель |
А |
32 |
40 |
16 |
16 |
32 |
|
|
максимальный рабочий ток |
А |
30,2 |
35,8 |
13,8 |
14,1 |
25 |
|
|
|
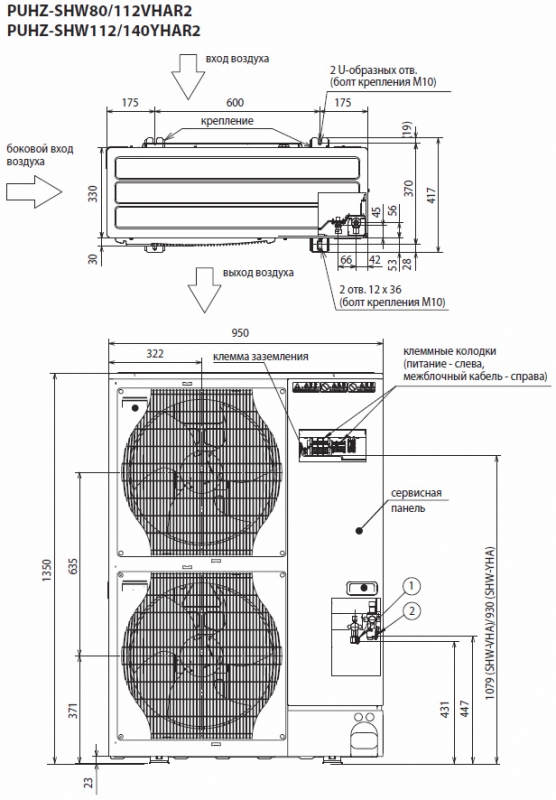
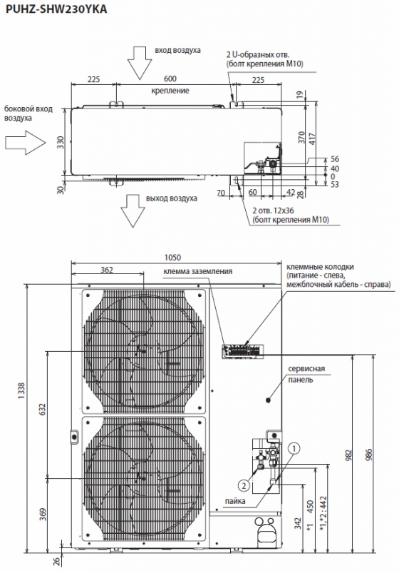
размеры (ДхШхВ) |
мм |
1350х (330+30) х950 |
1338 х (330+30) х 1050 |
|||
|
вес |
кг |
120 |
134 |
145 |
|||
|
Диаметр фреонопровода |
газ |
мм (дюйм) |
15,88 (5/8) |
25,5(1) или 28,8 (1-1/8) |
|||
|
жидкость |
мм (дюйм) |
9,52 (3/8) |
9,52 (3/8) |
||||
|
Фреонопровод |
длина/перепад высот |
м |
75/30 |
70/30 |
|||
|
Гарантированный диапазон наружных температур (нагрев)1 |
-28 ~ +35°С - ГВС, -28 ~ +21 °С - отопление |
-25 ~ +35°С |
|||||
|
Гарантированный диапазон наружных температур (охлаждение) |
-5 ~ +46°С (-15- +46°С при установленной панели защиты от ветра. См. список опций.) |
||||||
|
Завод (страна) |
MITSUBISHI ELECTRIC UK LTD. AIR CONDITIONER PLANT (Великобритания) |
MITSUBISHI ELECTRIC CORPORATION SHIZUOKA WORKS (Япония) |
|||||
1 Указан диапазон для наружных блоков модификации «R2.UK», в котором проводились заводские испытания. Опыт эксплуатации показывает, что системы ZUBADAN Inverter сохраняют работоспособность при более низких температурах.
2 Наружный агрегат PUHZ-SHW230YKA допускает параллельное подключение 2, 3 или 4 теплообменников «фреон-вода».
Размеры


Схемы электрических соединений

Комментарий к схеме соединений:
- Длина кабеля между наружным и внутренним блоками не должна превышать 75 м.
- Максимальная длина кабеля пульта управления составляет 500 м.
- Сечение кабеля электропитания приборов указано для участков менее 20 м. Для более длинных участков следует выбирать большее сечение, принимая во внимание падение напряжения.
- Провод заземления должен быть на 60 мм длиннее остальных проводников.
Комбинации наружных и внутренних блоков
| PUHZ-SHW80VHA | PUHZ-SHW112VHA/YHA | PUHZ-SHW140YHA | |
| PLA-(Z)RP_BA | PLA-(Z)RP71BA x 1 или PLA-(Z)RP35BA x 2 | PLA-(Z)RP100BA x 1 или PLA-(Z)RP50BA x 2 | PLA-(Z)RP125BA x 1 или PLA-(Z)RP60BA x 2 |
| PEAD-RP_JA(L) | PEAD-RP71JA x 1 или PEAD-RP35JA x 2 | PEAD-RP100JA x 1 или PEAD-RP50JA x 2 | PEAD-RP125JA x 1 или PEAD-RP60JA x 2 |
| PKA-RP | PKA-RP100KAL x 1 или PKA-RP50HAL x 2 |
Опции (аксессуары)
|
Наименование |
Описание |
|
|
1 |
PAC-SF83MA-E |
Конвертер для подключения к сигнальной линии Сити Мульти - M-NET (PUHZ-SHW80-140) |
|
2 |
PAC-SK52ST |
Диагностическая плата |
|
3 |
PAC-SG59SG-E |
Решетка для изменения направления выброса воздуха PUHZ- SHW80-140 (требуется 2 шт.) |
|
4 |
PAC-SH96SG-E |
Решетка для изменения направления выброса воздуха PUHZ- SHW230YKA (требуется 2 шт.) |
|
5 |
PAC-SH63AG-E |
Панель защиты от ветра: охлаждение до -15°С PUHZ-SHW71 ~140 (требуется 2 шт.) |
|
6 |
PAC-SH95AG-E |
Панель защиты от ветра: охлаждение до -15°С PUHZ-SHW230 (требуется 2 шт.) |
|
7 |
PAC-SG64DP-E |
Дренажный поддон PUHZ-SHW80-140 |
|
8 |
PAC-SH97DP-E |
Дренажный поддон PUHZ-SHW230 |
|
9 |
PAC-SG61DS-E |
Дренажный штуцер |
|
10 |
PAC-SE60RA-E |
Разъем для подключения электрического нагревателя поддона наружного блока (модели PUHZ-SHW80-140) |
|
11 |
PAC-SG82DR-E |
Фильтр-осушитель: диаметр 3/8 |
|
12 |
MSDD-50TR-E |
Разветвитель для мультисистемы 50:50 (PUHZ-SHW80~140) |
|
13 |
MSDD-50WR-E |
Разветвитель для мультисистемы 50:50 (PUHZ-SHW230) |
|
14 |
PAC-SG75RJ-E |
Переходник 15,88 — 19,05 |
|
15 |
PAC-IF012B-E |
Контроллер компрессорно-конденсаторных агрегатов для секций охлаждения и нагрева приточных установок и центральных кондиционеров |
|
16 |
PAC-IF032B-E |
Контроллеры компрессорно-конденсаторных агрегатов для систем нагрева и охлаждения воды |
|
17 |
PAC-IF051В-Е |